
suunnittelu - Toimitus - asennus - kierrätys
Prosessi
Palvelemme asiakkaamme alusta loppuun asti itse. Tämän vuoksi palveluumme kuuluu myös tilasuunnittelu, kalusteiden toimitus, asennus sekä kierrätys. Näin asiakkaillamme on yksi huoli vähemmän. Kierrätämme myös tarvittaessa käytöstä poistuvat huonekalut, jotta ne tulee kierrätettyä parhaalla mahdollisella tavalla.

Kartoitus
Me huolehdimme kokonaisuudesta ja toimimme asiakkaan neuvonantajana prosessin alusta loppuun saakka. Luomme tilat, jotka vastaavat yrityksen tarpeita, tehostavat tilankäyttöä, tukevat tuottavuutta, luovuutta ja yhdessä tekemisen kulttuuria.

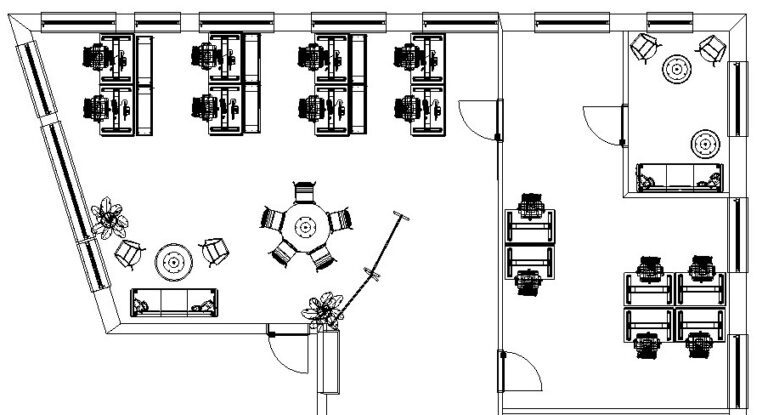
Suunnittelu
Suunnittelemme tilojen sisustus- ja kalusteratkaisuista aina valaistukseen ja akustiikkaan asti. Tarvittaessa hyödynnämme sisustussuunnittelijoiden osaamista. Olemme aina valmiina kokeilemaan uutta ja autamme sekä palvelemme asiakkaamme itse alusta loppuun asti. Käytössämme on suunnitteluohjelma ja saat tilojen muutokset 3D-kuvina ennen projektin aloittamista.

Tilasuunnittelu
Hyvä työympäristö tarjoaa jokaiselle jotakin. Tilaa on varattava niin vuorovaikutukselle, yhteistyölle, keskittymiselle kuin virkistäytymisellekin. Tällä kaikella edellä mainituilla seikoilla luodaan työpaikalle työhyvinvointia ja tuottavuutta.